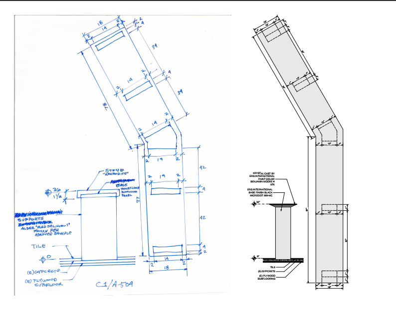
Our team comprises of Engineers, Architects and Draftsmen who have rich experience across various industry verticals and are familiar with codes of practice globally. We can seamlessly put together your data and sketches to give you accurate final drawings. We not only convert, but also add value by pointing out errors and correcting them whenever needed. We ensure quality not just from a conversion standpoint but also from an operational and functional perspective. By outsourcing CAD conversions to O2I, you can benefit greatly from our extensive experience in designing floor plans, creating elevations and electrical HVAC layout designs. Our CAD Conversion Services will deliver value to you.
Vector Formats
All formats editable when exported in electronic formats.
Strict NDA
Privacy and confidentiality protected in every project through extensive internal security procedures.
Cost Saving
Savings of up to 60% with every project performed by our teams.
Follow Standards
Customizable services to match your specific needs.