Design Source India is a skilled and experienced shop drawings services company provides structural shop drawings, steel shop drawings, rebar shop drawings and precast shop drawings to US, UK, Canada, Australia and global clients. Shop drawings are drawings, diagrams, schedules and other structural documents specially prepared by structural engineers for the construction work by the contractor or a subcontractor, sub-subcontractor, manufacturer, supplier or distributor to illustrate some portion of the structure work.
Steel Shop Drawings
Steel Bar Joist Drawings
Steel Assembly Drawings
Anchor Setting Plan
Steel Connection Detailing
Erection Drawings
Steel member Detail Drawings
Staircase Detailing Services
Stair Handrail Detailing Services
Canopy Steel Detailing
Carport Steel Detailing
Steel Grating Detailing Services
3d Modeling Drawing
Galvanised steel rainwater goods
Gutters,
Rainwater pipes,
Cappings,
Fascias,
Soffits,
Flashings,
Linear cladding,
Feature beams,
Rainscreen cladding,
Spandrel panels,
Roof outlets,
Louvres,
Window surrounds,
Gas risers
Fabrication Drawing
Column covers, Curved panels, Standing seam roofing, and roofing accessories, ACM Panel Systems.
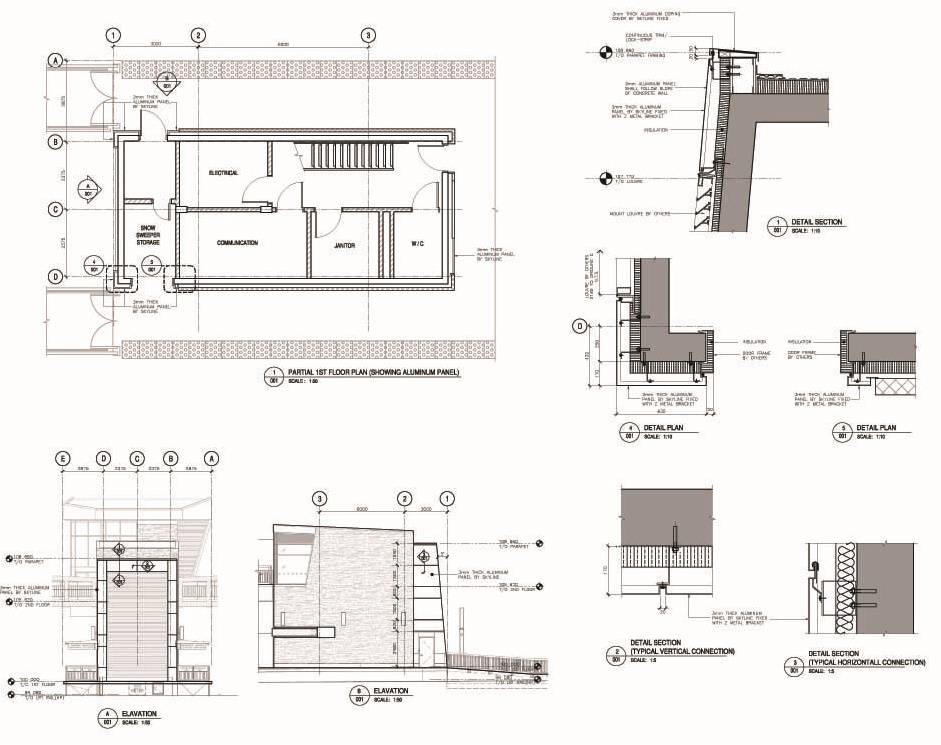
Sheet Metal Cladding Shop Drawings
We can count aluminum panels, sidings, EIFS and the others under the wall cladding shop drawings. It is really important to have all joining details when you deal with the exterior side of the wall. We are ready to show all your system against the water and the hard weather conditions.We also provide 3D drawings and rendering images for the custom designed elevations.
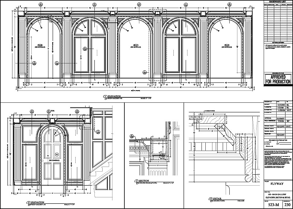
Millwork Shop Drawing
Millwork Shop Drawings are very important. They indicate all the details when the product in the stages of designing. Those drawing sets are more detailed than the architectural tendering drawings. We provide millwork shop drawings services for your projects. Typical millwork shop drawings must have all finishing types, material types of cabinets. All architectural drawing set dimensions supposed to be change with real site dimensions if we have the numbers.
Railing & Stair Shop Drawings
Our 3D railing shop drawings and staircase shop drawings represent the finish product to final user or an architect.Handrails in stairways can be made from several products. The most common products used to build a handrail are made with a wood or stainless steel. It is a well known fact that the more you have in your pockets, the more beautiful your house, and your railings are going to have more details.
Steel Shop drawings
The designer, architect, contractor, engineer, and manufacturers need to be sure they have come up with the right details at the steel shop drawings. For that reason approved shop drawings are very important before the production. Steel shop drawings suppose to be very detailed and easy following. All parties understand design scope, accurate measurements, and the type of steel frames with Steel Shop Drawings.
Exhibition Booth & stall Shop Drawings
We have been working on all custom designed Exhibit Trade Show Booth Shop Drawings since 2000. This is a very special area to work. We know, you are in tight schedule. We know, you want to be sure all your custom design trade booth parts integrated perfectly. You have to be experienced with millwork, steel work, graphic work, electrical management, cable management even with flooring when you work on custom designed Exhibit Trade Show Booth Shop Drawings.